Meine Projekte
Kreatives Design und Funktionalität vereint in jedem Projekt für optimale Ergebnisse.

2024
Hier finden Sie eine Auswahl meiner besten Architekturprojekte aus dem Jahr 2024


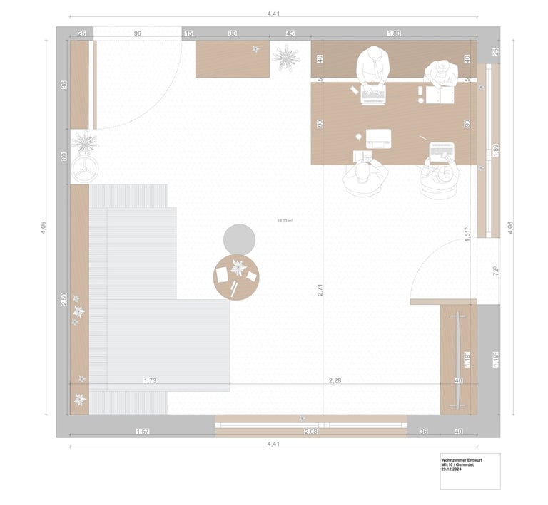
Wohnzimmer Gestaltung
2024 - Verbesserung von Raumstruktur, Lichtführung und Funktionalität
Aufgabe:
Die Optimierung des Wohnzimmers in einer 2-Zimmer-Wohnung in Köln hatte das Ziel, die räumliche Struktur unter Berücksichtigung architektonischer Parameter wie Lichtführung, Flächennutzung und Zonierung zu verbessern. Dabei sollte eine funktionale und ästhetisch ansprechende Lösung entwickelt werden, die die Wohnqualität erhöht. Besondere Schwerpunkte lagen auf der bestmöglichen Nutzung des Tageslichts, einer effizienten Möblierung sowie der Schaffung klar definierter Wohnbereiche. Zudem sollten nachhaltige Materialien und eine harmonische Gestaltung in das Konzept integriert werden.
Konzept:
Im Rahmen der Optimierung wurde zunächst eine detaillierte Analyse des bestehenden Grundrisses durchgeführt, um Potenziale für eine bessere Raumnutzung zu identifizieren. Eine der wesentlichen Herausforderungen war die Lichtführung, da das vorhandene Tageslicht nicht optimal genutzt wurde. Durch gezielt platzierte Reflexionsflächen, eine überarbeitete Möblierung und eine abgestimmte künstliche Beleuchtung konnte eine gleichmäßige und angenehme Lichtverteilung erreicht werden.
Die Flächennutzung wurde durch eine neue Möblierungsstrategie effizienter gestaltet. Multifunktionale Möbel ermöglichten eine flexible Nutzung des begrenzten Raums, während eine optimierte Wegeführung für mehr Offenheit sorgte. Gleichzeitig wurde die Zonierung überarbeitet, sodass sich der Wohnbereich nun in klar definierte Funktionsbereiche für Wohnen, Arbeiten und Entspannung gliedert. Diese Trennung wurde durch den gezielten Einsatz von Möblierung, Materialwechseln und Beleuchtungselementen betont.
Ein weiteres wichtiges Element war die Material- und Farbgestaltung. Durch den Einsatz natürlicher, ressourcenschonender Materialien konnte ein gesundes Raumklima geschaffen werden. Das Farbkonzept wurde so gewählt, dass der Raum größer und heller wirkt, während gezielte Akzente eine wohnliche Atmosphäre unterstützten.
Zur Veranschaulichung des Projekts wurden Vorher-Nachher-Grundrisse, Renderings und Skizzen erstellt, um die Veränderungen zu dokumentieren. Ergänzend dazu vermittelten Moodboards die geplante Material- und Farbgestaltung.
Die Umsetzung erfolgte innerhalb des gesetzten Zeitrahmens und führte zu einer deutlichen Verbesserung der Wohnqualität. Die optimierte Raumstruktur, die gezielte Lichtführung und die durchdachte Möblierung schufen eine harmonische, funktionale Wohnatmosphäre, die den Raum sowohl praktisch als auch ästhetisch aufwertete.
Tribüne + / Integriertes Projekt
Altes Fußballstadion, Köln-Nippes / 5. Semester - IP Gruppenarbeit






Tribüne +
Die Aufgabe ist die Entwicklung eines Nutzungskonzeptes zur Belebung der Tribüne im Rennverein als attraktiven Freizeitort. Ziel ist die öffentliche Nutzung des ehemaligen Fußballplatzgeländes und dessen ökologische und soziale Beachtung und Vorteile für das Quartier zu bieten. Architektonisch soll das Konzept die historische Tribüne durch neue Hochbauten ergänzen, erweitern oder umgestalten, wobei die neu genutzte Freifläche als konzeptuelle Einheit mit der Tribüne betrachtet wird. Für das vielfältige Freizeitangebot, das von Schul- und Vereinsschwimmen über Familien- und Freizeitschwimmen reicht, ist das Konzept Tribüne + Hallenbad in Köln/Nippes-Weidenpesch ablesbar in zwei unterschiedliche Bereiche gegliedert. Ein Bereich ist der Trockenbereich, worin sich die historische Tribüne befindet. Dieser Bereich öffnet sich für Zuschauer des Schwimmsportes und bietet Platz für das tägliche Verweilen. Der zweite Bereich gliedert die Nasszone, der sich nur für die Nutzer des Schwimmsports erschließen lässt.
Konzept:
Der Entwurf verfolgt das Ziel, der denkmalgeschützten und vernachlässigten Tribüne eine neue Identität zu verleihen. Die Funktion einer Tribüne besteht darin, ein bestimmtes Geschehen zu beobachten. Unser Leitmotiv lautet daher konsequent: „Tribüne bleibt Tribüne.“ In Anbetracht der aktuellen Ausschreibung des Verbands der Kölnbäder für ein neues Schwimmbad in Nippes haben wir diese Gelegenheit genutzt, einen Entwurf für ein Hallenbad mit einer einzigartigen 50 Meterbahn zu entwickeln. In diesem Rahmen wird der Tribüne eine besondere Aufmerksamkeit verliehen.
Erschließung:
Der Hauptzugang liegt im Westen und vermittelt zwischen Stadtraum und öffentlicher Erschließung. Beim Betreten des Besuchers auf +3m öffnet sich ihm ein grandioser Überblick von der Empore liegenden Erschließungssituation. Eine klare Zonierung wird durch die Unterteilung der Geschosse erreicht. Das EG ist sehr offen, clean und frei von jeglicher Sichtblockade gestaltet. Im UG befinden sich dazu gegenteilig alle Räume des Schwimmbedarfes (Um-kleiden, Duschen, Technik etc.). Nach Norden, Osten und Süden verzahnt sich der Neubau mit seinen lichtdurchfluteten Fassaden mit dem attraktiven Landschaftsraum. Im Erdgeschoss ist die Gastronomie innerhalb der Tribüne untergebracht, welche sich durch einen innen liegenden Ausstellungsbereich über die Historie der Tribüne ergänzt und sich der Gesellschaft unabhängig des Schwimmsports öffnet.


Architektur
Kreatives Design trifft auf funktionale Lösungen.
Silas kolb
info.silaskolb@gmail.com
+49 1573 3907598
© 2024. All rights reserved.
